Projets - Open space

>>

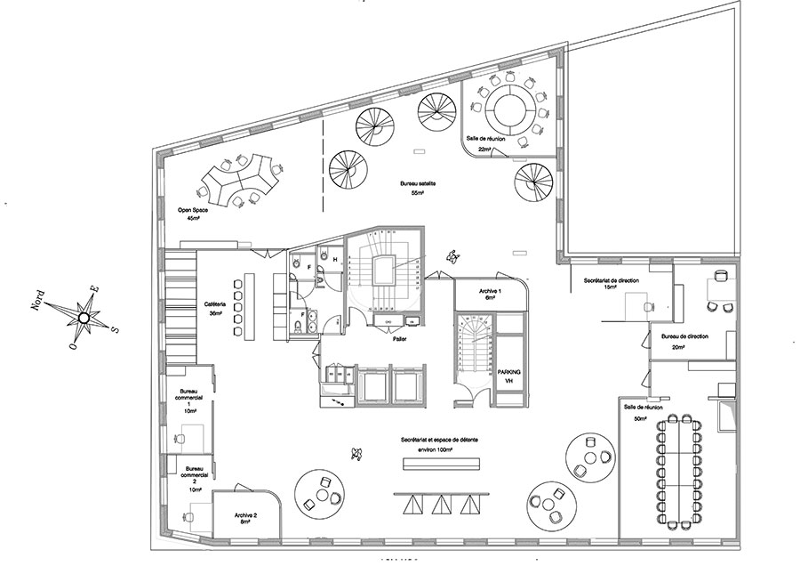
Présentation de l'open space

A l’arrivée sur le plateau, les personnes sont dirigées vers le secrétariat et la salle de détente. La grande salle de conférence se trouve non loin de l’entrée pour faciliter l’accès des clients. Les bureaux de direction et de l’assistante y sont accolés. Pour éviter la gêne acoustique, la cafétéria avec sa kitchenette et l’open space sont placés à l’opposé de ces bureaux. L’ascenseur a un accès direct sur la cafétéria et les bureaux des commerciaux, un autre accès donne sur les bureaux satellites. La petite salle de conférence se situe non loin des bureaux satellites. Pour éviter un problème d’acoustique lié au bruit des imprimantes, j’ai choisi de créer une archive pour les isoler.

L’open space et les bureaux satellites donnent sur la Seine et sont mobiles pour libérer l’espace en cas d’exposition.

Zooning
Plan

Pour les PMR, les accès principaux doivent avoir une largeur de 1m et une largeur de porte de 90cm.

Deuxième plan

L’open space possède une thématique générale rappelant la nature. L’ensemble reste harmonieux grâce à des couleurs neutres et naturelles (vert, marron et blanc). Les formes sont arrondies pour créer une atmosphère conviviale. Les matières restent naturelles car c’est en grande majorité du parquet. Mais il y a aussi du verre qui permet de rendre l’espace très lumineux. Le plafond est lui constitué de dalles acoustiques et de lampes incrustées.

Troisième plan

L’ensemble possède une partie mobile au nord avec l’open space et les bureaux satellites, ce qui permet de pouvoir créer un espace d’exposition. Les bureaux sont ensuite déplacés dans la grande salle de réunion dont le mobilier est également mobile. Les bureaux satellites sont démontables et peuvent être reconstruits ailleurs.

Zooning Plan Deuxième plan Troisième plan

>>